跟以往的設計服務一樣,量尺、收集信息、溝通設計風格、定位家居主材、一切工作順利的進行,信手拈來。不過在L小姐的要求下,選擇了我們設計方相對高標準的施工團隊,這一下就造成了一個不小的難題--如何在有限的預算下拿捏好資金分配比。高標準的施工團隊固然能將家里的基礎質量提升很高的檔次,但基礎預算相對也會提高,一分價一分貨。在與L姐的多次溝通下,決定聽取我們的意見,選擇設計師渠道商家或以網(wǎng)購的形式采購主材。
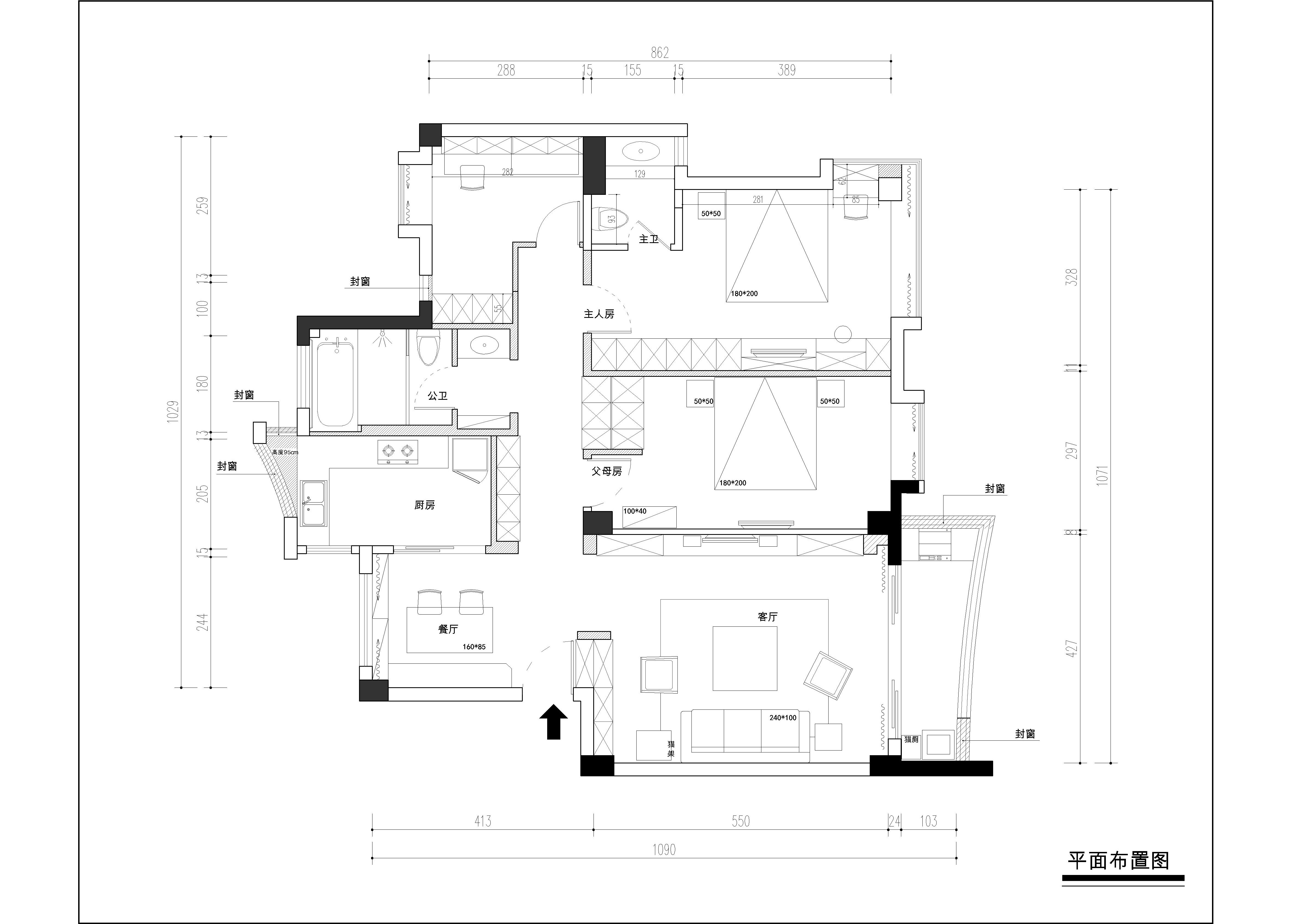
本案在平面的改造上也因L小姐的需求做了不小的調整,L小姐家庭結構簡單,長期居住者并不多,但非常的希望有足夠的儲物空間,我們在設計初期將家里的墻幾乎都做了調整,讓大面積的柜子做成嵌入式,這樣不顯突兀。(下圖)

餐廳區(qū)的卡座增加了空間的利用,讓原本狹小的就餐區(qū)搖身變成功能豐富的餐廳。(下圖)















過道處我們將房間的空間比例重新劃分,讓部分作為柜子朝過道,這樣使得過道不那么局促,豐富空間的同時也提高了儲物量。




干濕分區(qū)的客衛(wèi),不僅隔離的潮濕的淋浴區(qū),而且干區(qū)在使用上非常的便利。(下圖)













每一個案例收獲的不只是好的設計作品,更可貴的是跟我們可愛的業(yè)主的相處的過程并成為朋友!

項目名稱:蛇口招商海月花園
面積:125平方
預算:50萬
設計師:阿峰&張潔
攝影師:艾榮
主材:仿古磚,灰泥墻面藝術漆,水性漆,復合地板
房門:美森耐
櫥柜:小金豆
潔具:皇朝衛(wèi)具
家私:網(wǎng)購
配飾:網(wǎng)購
地磚:俊澤瓷磚
地板:必美地板
窗簾:一米布藝